____________________________
【toy box】
クライアントは、構造・材料・防災・価格など、様々な観点から住宅づくりに取り組み、独自の性能規格を持った企業である。
私達は、その会社が工務店ユニオン、つまり複数の工務店の集合によって成り立つ企業である点に注目した。
複数の工務店が集合しているという事は、互いの技術をシェアし合えるという事でもあり、彼らが比較可能・共有可能・そして伝達可能な知識を有している事を意味している。
そこで私達は、『彼らが保有する性能規格の特徴を最大限に活用しながらも、その集合知をストックとして共有できる』住宅、ある意味で『家本来の在り方伝えるコミュニケーションツール』としての住宅を提案した。
私達は、その会社が工務店ユニオン、つまり複数の工務店の集合によって成り立つ企業である点に注目した。
複数の工務店が集合しているという事は、互いの技術をシェアし合えるという事でもあり、彼らが比較可能・共有可能・そして伝達可能な知識を有している事を意味している。
そこで私達は、『彼らが保有する性能規格の特徴を最大限に活用しながらも、その集合知をストックとして共有できる』住宅、ある意味で『家本来の在り方伝えるコミュニケーションツール』としての住宅を提案した。
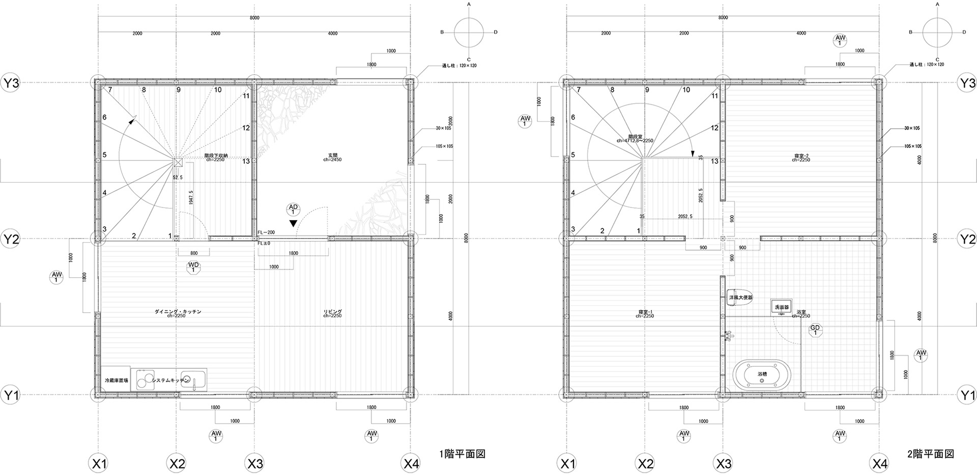
【トイ・ボックス】は、四つ間形式の総2 階建、各フロアに4m×4m の正方形が4 つ分納まった単純な平面構成
その内部空間に、大きな階段や浴室・玄関、思い思いの特色を持った部屋をつくり、『部屋だけど広場のように、家だけどおもちゃのように住まいを楽しめる』住宅である。
クライアントの顧客の多様なライフスタイルに対応するため、住宅を躯体・立面・インテリアに分け、それぞれに対して多くのヴァリエーションを用意。
これにより、何百、何千通りという組み合わせが可能となり、対象の家族がより自由な選択肢の中で、自分達の理想の住まいを追求できる。
また、その仕様・空間・施工ノウハウが全て、会社の共有知としてストックされていく。
その内部空間に、大きな階段や浴室・玄関、思い思いの特色を持った部屋をつくり、『部屋だけど広場のように、家だけどおもちゃのように住まいを楽しめる』住宅である。
クライアントの顧客の多様なライフスタイルに対応するため、住宅を躯体・立面・インテリアに分け、それぞれに対して多くのヴァリエーションを用意。
これにより、何百、何千通りという組み合わせが可能となり、対象の家族がより自由な選択肢の中で、自分達の理想の住まいを追求できる。
また、その仕様・空間・施工ノウハウが全て、会社の共有知としてストックされていく。
地場の工務店と、そこに住宅を依頼する家族が、楽しみながら理想の住まいを探求する。 そうした家づくりのあり方が可能となる建築を目指した。
____________________________


____________________________








____________________________
013_ex_S工務店ユニオンのための商品開発 _ 【toy box】 主用途 : 個人住宅 規模等 : 木造 128㎡ 地上2階建 設計期間 : 2010年12月 ~ 2011年8月 意匠 : 菊池甫 意匠協力 :(株)千金堂商品開発部