____________________________
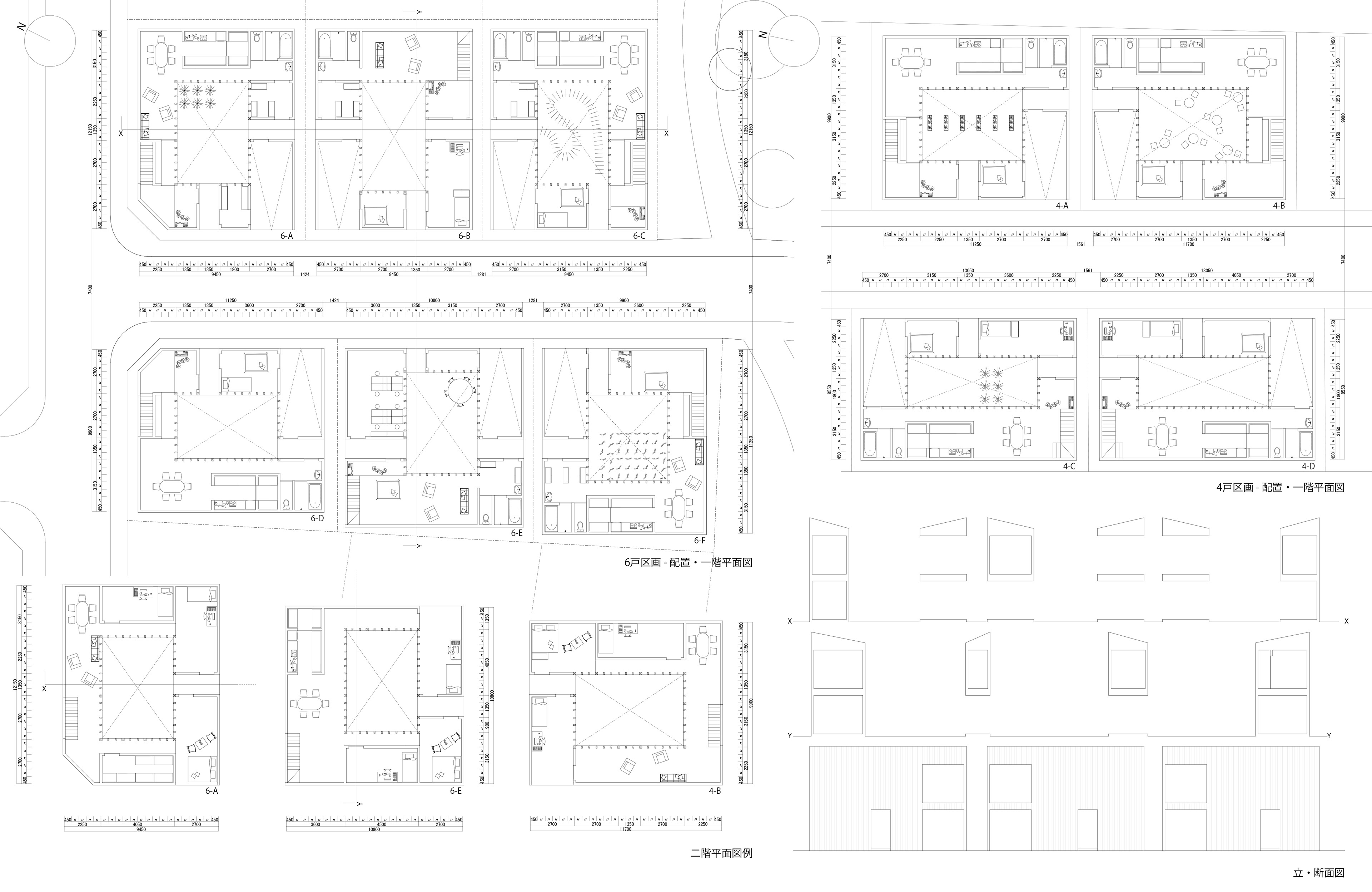
【子ども達をつなぐ家】は、複数世帯で作る戸建て集合住宅です。
提案する全住戸の中央には、『子ども道』といわれる大きな空き地が用意されています。
空き地は、隣の住戸と接続されており、住戸群全体で一つの空き地を共有しているかのような構成となっています。
提案する全住戸の中央には、『子ども道』といわれる大きな空き地が用意されています。
空き地は、隣の住戸と接続されており、住戸群全体で一つの空き地を共有しているかのような構成となっています。
子ども達が日常的に『子ども道』で遊び、それを取り巻くように配置された住戸の中で、親達はその気配を感じとる。
子ども達の結びつきは、親同士の結びつきにも広がり、地域全体で子どもと子ども達のための環境を育んでゆく。
私達は、そうした試みを『手作りのパブリック』と名付け、提案の主要なテーマとしました。
子ども達の結びつきは、親同士の結びつきにも広がり、地域全体で子どもと子ども達のための環境を育んでゆく。
私達は、そうした試みを『手作りのパブリック』と名付け、提案の主要なテーマとしました。
____________________________
____________________________
____________________________
081_cp_I市住宅地設計コンペ _【子ども達をつなぐ家】 意匠 : 菊池甫 企画協力 : 山本展久(山本展久アトリエ荒川企画室)