
____________________________
①「サトコウ遊牧民プロジェクト」
【『SSUT』プロトタイプ住宅】は、株式会社サトコウ(施工)・株式会社LDK.ink(プロデュース)と共同で進めたプロジェクトです。
SSUTとは、工場生産された鉄製のボックスを積層・連結する事で大規模建築を構築する工法の事を指します。
これは、サトコウが独自開発した技術であり、ローコスト・短工期で建築を構築できる工法として、注目を集めていました。さらに、この工法には構造体の持ち運びが可能という、隠された利点がありました。
SSUTとは、工場生産された鉄製のボックスを積層・連結する事で大規模建築を構築する工法の事を指します。
これは、サトコウが独自開発した技術であり、ローコスト・短工期で建築を構築できる工法として、注目を集めていました。さらに、この工法には構造体の持ち運びが可能という、隠された利点がありました。
私達はこの特性を活かしたプロジェクトを「サトコウ遊牧民プロジェクト」と呼び、コンセプトイラストを用意し、工法をコンセプトに昇華する方法を模索しました。
こうした取り組みの結果に立ち現れたのが、今回のプロトタイプ住宅になります。
こうした取り組みの結果に立ち現れたのが、今回のプロトタイプ住宅になります。
____________________________

②プロジェクトの実施
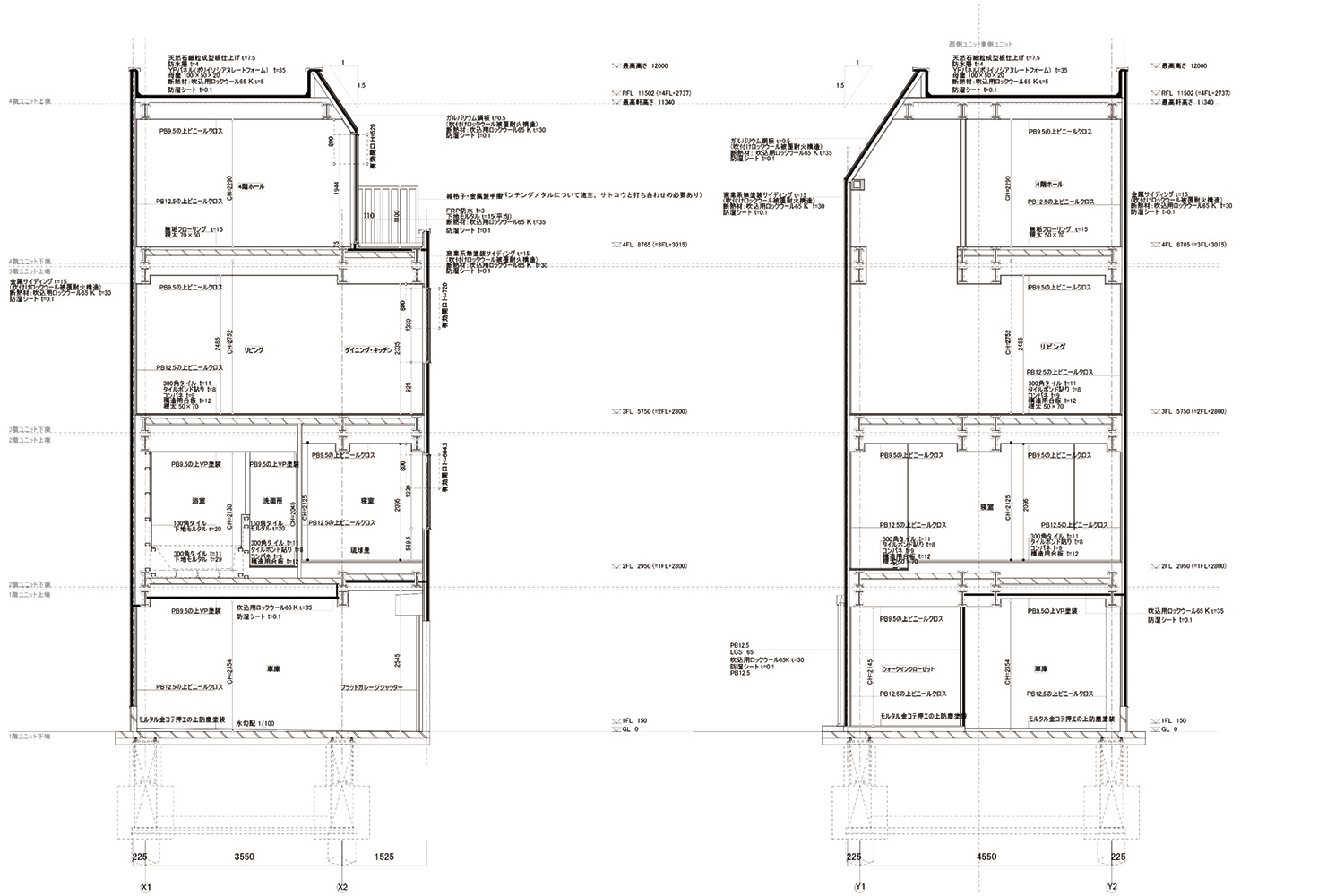
敷地は、東京都文京区にあります。中程度のビル群に囲まれながら、前面道路の幅員の狭い都市のポケットスペース。しかも地盤が弱く、ある程度以上の規模の住宅を建設するには強い基礎を作らなければならない土地。
現場での作業量を軽減するという意味で 「SSUT」が用いられました。
8つのボックスで構築されたこの建築は 独自の断面やヴォリュームを形づくります。
現場での作業量を軽減するという意味で 「SSUT」が用いられました。
8つのボックスで構築されたこの建築は 独自の断面やヴォリュームを形づくります。
SSUTの最大の魅力は、価値の多様化への対応にあると私達は考えました。
狭小住宅やローコストハウス、生活スタイルの多様化、インフラの問題で物資の供給が困難な地方や山間部、そして被災地・・・、従来の一品生産や、ハウスメーカーによるプレハブ建築では対処の困難が事例が日増しに増えているように思えます。
そんな中、SSUTの取り組みは、既存のシステムの再定義を検討する一つのきっかけになるのではないかと私達は考えます。何を効率化し、どの部分に労力とオリジナリティを注ぐべきか。建築の発展に最新技術は欠かせませんが、それ以上に重要なことは、「既存の慣習の刷新」です。
狭小住宅やローコストハウス、生活スタイルの多様化、インフラの問題で物資の供給が困難な地方や山間部、そして被災地・・・、従来の一品生産や、ハウスメーカーによるプレハブ建築では対処の困難が事例が日増しに増えているように思えます。
そんな中、SSUTの取り組みは、既存のシステムの再定義を検討する一つのきっかけになるのではないかと私達は考えます。何を効率化し、どの部分に労力とオリジナリティを注ぐべきか。建築の発展に最新技術は欠かせませんが、それ以上に重要なことは、「既存の慣習の刷新」です。
今回のプロジェクトが、価値の多様化・システムの再定義の一つのきっかけになってもらえば、そう私達は考えています。
____________________________









____________________________
009_ex_Kさんの住宅 _【『SSUT』プロトタイプ住宅】 所在地 : 東京都文京区 主用途 : 個人住宅 規模等 : 鉄骨造(SSUT) 94.54㎡ 地上4階建 設計期間 : 2010年8月 ~ 2011年4月 施工期間 : 2011年5月 ~ 2011年10月 意匠 : 菊池甫 構造 : サトコウ プロデュース: LDK.ink 施工 : サトコウ